Geberit ProPlanner Planning software for plumbers
Geberit ProPlanner is specially tailored to the needs of plumbers and plumbing companies who plan sanitary installations independently.
The planning modules cover various sanitary technologies, from the planning of installation systems to pipe dimensioning and hydraulic calculations.
When you install Geberit ProPlanner – observing the system requirements – and register for the first time, you will receive a licence key which allows you to use the Installation Systems module.
Software training is required to use the modules for the schematic planning of piping systems, detailed planning 3D, roof drainage and waste water prefabrication. Once you have taken part, you will receive a licence. Contact us if you are interested in this training.

Why choose Geberit ProPlanner?
Straightforward planning
The creation of schematic drawings provides you with complete pipe dimensioning and a material list for your project.
Precise calculations
Reliable calculations are made automatically on the basis of Geberit expertise.
Easy to use
The user interface is intuitive and easy to learn.
Quick creation
Drawings can be created quickly and reports generated at a mouse click.
Planning modules
Installation systems
Fast, simple and efficient installation system planning:
- Planning of installation systems
- Geberit Duofix and Geberit GIS product ranges
- Planning using the quick entry option
- Fast, simple and efficient installation system planning
- Export function for detailed planning 3D module
- CAD export interface (Autodesk® RealDWG®)
- Latest regulations and Geberit products integrated
- Calculation according to Geberit directives and regulations
- Automatic output of material, parts, offer and cut lists
- Automatic output of floor plan, front view and installation drawings

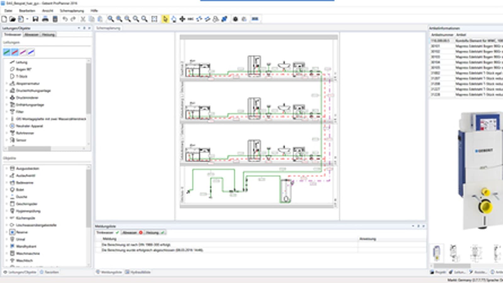
Schematic planning
Detailed drawing for piping system planning:
- Planning of drinking water and drainage systems
- Geberit Mepla, Geberit Mapress Stainless Steel, Geberit Mapress Copper, Geberit PE and Geberit Silent-db20 product ranges
- Planning in schematics
- Detailed drawing for piping system planning
- CAD export interface (Autodesk® RealDWG®)
- Latest regulations, standards and Geberit products integrated
- Calculation according to country-specific standards
- Automatic output of material, parts, hydraulic and offer lists
- Automatic output of schematic drawings

Detailed planning 3D
Comprehensive and detailed planning of sanitary units:
- Planning of installation, drinking water and drainage systems
- Geberit Duofix, Geberit GIS, Geberit Mepla, Geberit Mapress Stainless Steel, Geberit Mapress Copper, Geberit PE and Geberit Silent-db20 product ranges
- Planning in floor plan, front view and 3D
- Comprehensive and detailed planning of sanitary units
- CAD import and export (Autodesk® RealDWG®)
- Direct planning based on CAD plans
- Latest regulations, standards and Geberit products integrated
- Calculation according to Geberit directives and regulations
- Automatic output of material, parts, offer and cut lists
- Automatic output of floor plan, front view, 3D and installation drawings

Roof drainage
Optimum hydraulic, economical and reliable planning for dimensioning:
- Planning Geberit Pluvia syphonic roof drainage systems
- Geberit PE, Geberit Silent-db20 and Geberit Pluvia product ranges
- Planning in isometrics
- Optimum hydraulic, economical and reliable planning for dimensioning
- CAD import and export interface (Autodesk® RealDWG®)
- Roof area calculation on CAD plans
- Latest regulations, standards and Geberit products integrated
- Calculation according to country-specific standards or Geberit regulations
- Automatic output of material, hydraulic and offer lists
- Automatic output of isometric drawings

Waste water prefabrication
Drainage system planning true to fittings and detail:
- Planning of drainage systems
- Geberit PE and Geberit Silent-db20 product ranges
- Planning in floor plan, front view and 3D
- Drainage system planning true to fittings and detail
- CAD import and export interface (Autodesk® RealDWG®)
- Direct planning based on CAD plans
- Latest regulations and Geberit products integrated
- Calculation based on Swiss waste water standard
- Automatic output of material, parts, offer and cut lists
- Automatic output of floor plan, front view, 3D and installation drawings

Latest updates of Geberit Proplanner
Geberit ProPlanner is being continuously improved and expanded with new functions. Twice a year, in April and October, we release a new version of the software.
Find out about the latest update:

System requirements
Please check the necessary system requirements before downloading the planning software:
| Minimum | Recommended | |
|---|---|---|
| Operating system | Windows 8.1 Windows 10 (as of 1809) | Windows 10 (as of 1809) |
| Processor | Intel or AMD multi-core processor | Intel or AMD multi-core processor |
| RAM | 2 GB | 4 GB |
| Hard disk memory | 3 GB free | 6 GB free |
| Graphics card | 64 MB, DirectX 9 | 256 MB, DirectX 9 |
| Display | 1280 pixel horizontal resolution, 900 pixel vertical resolution | 1920 pixels, horizontal resolution / 1080 pixels, vertical resolution |
| 96 dpi (display resolution) recommended | ||
| Online services | Internet access required Valid e-mail address | |
| System components | Included in delivery and installed automatically: - Microsoft .NET 4.7 - Microsoft DirectX 9 |
With the company licence, you may install and activate Geberit ProPlanner in your company as many times as you like. The software is free of charge for trainees and all educational institutions.
Please contact us if you would like to order the licence.
Training courses and manuals
Read our training manual to familiarise yourself with the functions of Geberit ProPlanner.
- Download our training manuals (24 MB) here.
- In order to use the Geberit ProPlanner modules even more efficiently, we offer special software seminars and individual training courses.
- Register for a training course.
Frequently asked questions about Geberit ProPlanner
Can I export reports and drawings from Geberit ProPlanner?
Yes, the software enables the export of detailed reports, material lists and drawings in various formats for documentation and dissemination.
Does Geberit ProPlanner contain a database of Geberit products?
Yes. Geberit ProPlanner offers access to an up-to-date and comprehensive database of Geberit products including technical specifications and installation details.
Is Geberit ProPlanner also suitable for large projects?
Yes. The software has been developed so that sanitary projects of all sizes can be created – from smaller residential projects to large commercial construction projects.
Additional tools for sanitary professionals

Geberit BIM Plug-in
The Geberit BIM Plug-in for Autodesk® Revit® combines all Geberit planning and calculation tools as well as access to BIM content in one application.

Geberit Pro app
From identifying products to finding spare parts: the practical tool for plumbers needing information quickly on the building site.