Geberit ProPlanner Planning software for plumbers
Geberit ProPlanner is specially tailored to the needs of plumbers and plumbing companies who plan sanitary installations independently.
The planning modules cover various sanitary technologies, from the planning of installation systems to pipe dimensioning and hydraulic calculations.
When you install Geberit ProPlanner – observing the system requirements – and register for the first time, you will receive a licence key which allows you to use the Installation Systems module.
Software training is required to use the modules for the schematic planning of piping systems, detailed planning 3D, roof drainage and waste water prefabrication. Once you have taken part, you will receive a licence. Contact us if you are interested in this training.

Why choose Geberit ProPlanner?
Straightforward planning
The creation of schematic drawings provides you with complete pipe dimensioning and a material list for your project.
Precise calculations
Reliable calculations are made automatically on the basis of Geberit expertise.
Easy to use
The user interface is intuitive and easy to learn.
Quick creation
Drawings can be created quickly and reports generated at a mouse click.
Planning modules
Installation systems
The module enables quick, simple and precise planning and modelling of installation systems.
Functions:
- Planning of installation systems
- Calculation according to Geberit guidelines and regulations
- Latest updates to regulations and integrated Geberit products
- Automatic output of material, offer and cut lists
- Automatic output of floor plan, front view and installation drawings
- Export function for detailed 3D planning
- CAD export interface (Autodesk® RealDWG®)

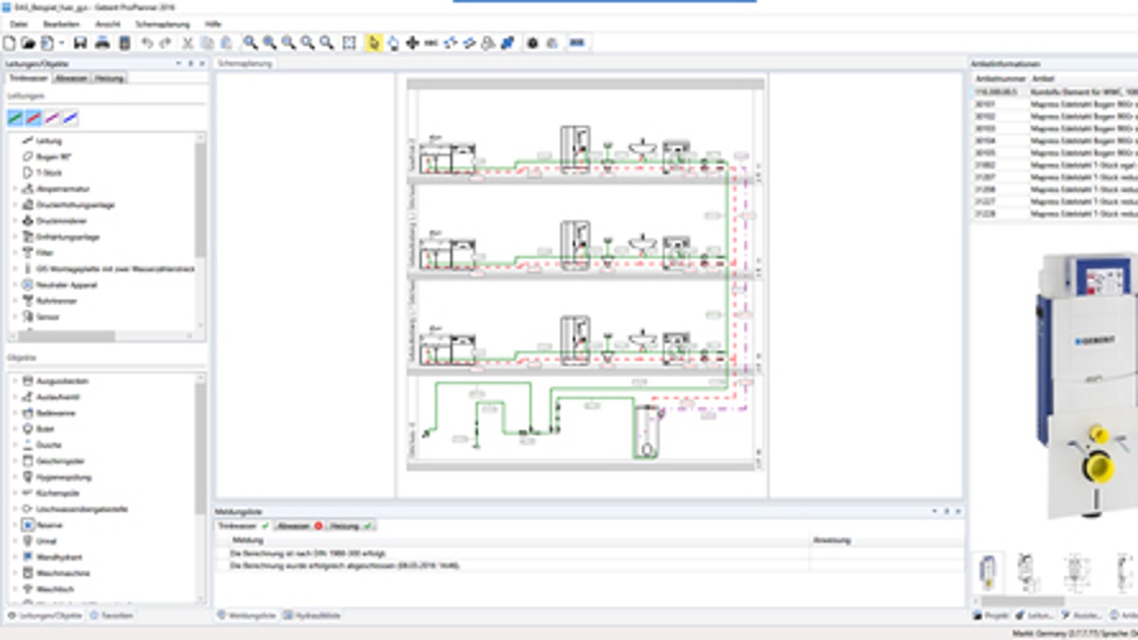
Schematic planning
The module enables the planning of piping systems based on detailed drawings.
Fucntions:
- Planning of drinking water and drainage systems
- Calculation according to country-specific standards
- Latest updates to regulations and integrated Geberit products
- Automatic output of material, hydraulic and offer lists
- Automatic output of schematic drawings
- CAD export interface (Autodesk® RealDWG®)

Detailed planning 3D
The module enables comprehensive 3D modelling of the sanitary appliances. The software ensures a correct design.
Functions:
- Planning of installation, drinking water and drainage systems
- Planning possible in floor plan, front view and 3D
- Calculation according to Geberit guidelines and regulations
- Latest regulations, standards and integrated Geberit products
- Automatic output of material, offer and cut lists
- Automatic output of floor plan, front view, 3D and installation drawings
- CAD import and export (Autodesk® RealDWG®)

Roof drainage
The module enables reliable planning of pipe dimensioning for roof drainage and thus optimised hydraulics.
Functions:
- Planning Geberit Pluvia syphonic roof drainage systems
- Isometric planning of the Geberit Pluvia roof drainage system
- Calculation according to country-specific standards or Geberit regulations
- Latest regulations, standards and integrated Geberit products
- Automatic output of material, hydraulic and offer lists
- Automatic output of isometric drawings
- CAD import and export interfaces (Autodesk® RealDWG®)

Prefabrication of drainage systems
The module enables detailed planning and 3D modelling of pipes and fittings for drainage systems.
Functions:
- Planning of drainage systems
- Planning possible in floor plan, front view and 3D
- Automatic output of material lists and cut lists for prefabrication of pipes
- Automatic output of floor plan, front view, 3D and installation drawings
- CAD import and export interface (Autodesk® RealDWG®)

Latest updates of Geberit Proplanner
Geberit ProPlanner is being continuously improved and expanded with new functions. Twice a year, in April and October, we release a new version of the software.
Find out about the latest update:

System requirements
Please check the necessary system requirements before downloading the planning software:
| Minimum | Recommended | |
|---|---|---|
| Processor | 1 GHz | 2.5 GHz |
| RAM | 4 GB | 16 GB free storage space |
| Storage space | 4 GB free storage space | 6 GB free storage space, SSD |
| Graphics card | Integrated graphics | Integrated graphics |
| Display | 1280 x 1024 | 1920 x 1080 |
| Operating system | Windows 64-bit desktop version supported by Microsoft | Latest Windows 64-bit desktop version |
| Online services | Internet connection Email address | Internet connection Email address |
With the company licence, you may install and activate Geberit ProPlanner in your company as many times as you like. The software is free of charge for trainees and all educational institutions.
Please contact us if you would like to order the licence.
Training courses and manuals
Read our training manual to familiarise yourself with the functions of Geberit ProPlanner.
- Download our training manuals (24 MB) here.
- In order to use the Geberit ProPlanner modules even more efficiently, we offer special software seminars and individual training courses.
- Register for a training course.
Frequently asked questions about Geberit ProPlanner
Can I export reports and drawings from Geberit ProPlanner?
Yes, the software enables the export of detailed reports, material lists and drawings in various formats for documentation and dissemination.
Does Geberit ProPlanner contain a database of Geberit products?
Yes. Geberit ProPlanner offers access to an up-to-date and comprehensive database of Geberit products including technical specifications and installation details.
Is Geberit ProPlanner also suitable for large projects?
Yes. The software has been developed so that sanitary projects of all sizes can be created – from smaller residential projects to large commercial construction projects.
Additional tools for sanitary professionals

Geberit BIM Plug-in
The Geberit BIM Plug-in for Autodesk® Revit® combines all Geberit planning and calculation tools as well as access to BIM content in one application.

Geberit Pro app
From identifying products to finding spare parts: the practical tool for plumbers needing information quickly on the building site.

Geberit PipeSelect
Query the chemical resistance of Geberit piping systems. The tool helps you select the right product for your project.